Mientras la retórica del rearme vuelve al centro del debate político internacional —impulsada por la política exterior de Donald Trump y el aumento de tensiones entre la OTAN y Rusia—, en el sur de España se está produciendo una ampliación militar de gran calado que ha pasado prácticamente desapercibida para la opinión pública, si bien medios especializados se han venido haciendo eco del importante despliegue en infraestructuras militares que este movimiento supone.
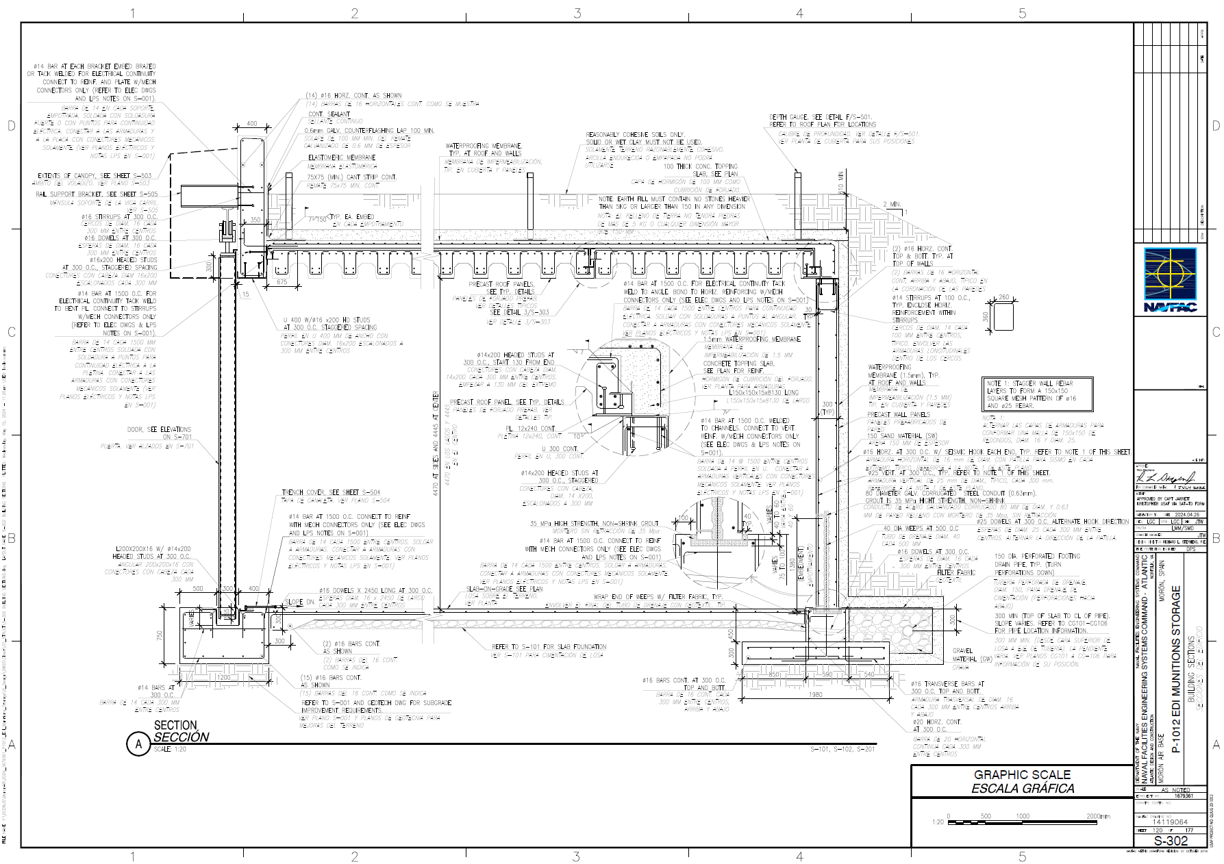
La documentación técnica del proyecto P-1012 EDI Munitions Storage Area, correspondiente a la Base Aérea de Morón de la Frontera, revela un incremento sustancial de la capacidad de almacenamiento de munición, tanto en volumen como en complejidad operativa. No se trata de declaraciones políticas ni de filtraciones: lo dicen los planos.
El aumento de capacidad de almacenamiento de munición en la base de Morón no es un dato neutro ni meramente cuantitativo. Según fuentes técnicas vinculadas a las obras, análisis académicos en materia de seguridad internacional y lecturas estratégicas desde el ámbito militar, este tipo de ampliación tiene implicaciones claras que van más allá del perímetro de la base.
Cuando una base militar pasa de once a más de veinticinco depósitos de munición, no estamos ante un simple ajuste técnico. No es como ampliar un almacén porque «falta sitio». Según las fuentes técnicas y analíticas consultadas, este tipo de salto cuantitativo suele marcar un cambio de función. Una base que antes almacenaba lo necesario para su propio funcionamiento pasa a estar preparada para gestionar grandes volúmenes de munición de forma continuada, con capacidad para recibirla, conservarla y redistribuirla cuando sea necesario.
Dicho de otra forma: deja de ser un punto de apoyo y empieza a comportarse como un nodo logístico. Eso significa que no solo abastece a las unidades que operan desde la propia base, sino que puede sostener operaciones más amplias, incluso en otros territorios. Este tipo de infraestructura no se construye para un pico puntual de actividad, sino para escenarios prolongados, donde la disponibilidad inmediata de material bélico es clave.
Esta lectura no es nueva dentro del propio ámbito militar estadounidense. En 2018, una publicación oficial de la base de Ramstein describía a Morón como una «base pequeña con una misión enorme», subrayando su papel clave en la proyección militar hacia varios teatros de operaciones. Lejos de presentarla como una instalación secundaria, el texto la definía como un elemento que «hace posible el combate», una pieza logística sin la cual determinadas operaciones no podrían sostenerse.
Siete años después, la ampliación de la capacidad de almacenamiento de munición parece dar forma física y permanente a aquella definición. Lo que entonces se describía como misión, hoy se traduce en hormigón, acero y depósitos alineados.
Más del doble de capacidad: de 11 a al menos 26 depósitos de municiión

Los planos constructivos muestran con claridad que el número de Earth-Covered Magazines (ECM) —depósitos de munición semienterrados— pasa de 11 unidades existentes a un mínimo de 26. Es decir, más del doble de la capacidad previa.
Los ECM no son almacenes genéricos. Son estructuras específicamente diseñadas para el almacenamiento de munición de alto riesgo, con muros de hormigón armado de hasta 45 centímetros, cubiertas semienterradas con relleno de tierra para la absorción de la onda expansiva, puertas acorazadas de acceso único y una separación regular entre módulos pensada para limitar daños en caso de detonación.
La repetición seriada de estas estructuras, con accesos estandarizados y viales preparados para vehículos pesados, apunta a un sistema logístico permanente. No se trata de una ampliación puntual o preventiva, sino de un salto estructural en la capacidad operativa de la base, que encara así no sólo una ampliación, sino la determinación como base clave en la defensa del espacio del Mediterráneo.
Desde el ámbito académico, hay una idea que se repite con bastante consenso: la munición no se acumula cuando estalla una crisis, sino mucho antes. Los conflictos modernos, especialmente entre grandes potencias o bloques militares, no admiten improvisación logística. La capacidad de sostener una operación en el tiempo depende de lo que ya esté almacenado cuando empieza la tensión.
Una investigadora universitaria especializada en seguridad internacional, consultada para este trabajo, explica que el refuerzo de depósitos de munición suele ser una de las señales más claras de anticipación estratégica. No implica necesariamente que una guerra sea inminente, pero sí que los planificadores militares consideran plausible un escenario de mayor intensidad o duración, y se preparan para no depender de envíos urgentes o vulnerables.
En ese sentido, la ampliación de Morón encaja mejor con una lógica de «por si acaso» a gran escala que con una respuesta defensiva inmediata. Es una forma de decir: «si algo pasa, esto ya está listo». En el lenguaje geopolítico que esgrime la Administración Trump, esto parece ser equivalente a «prepararnos para hacerlo posible».
Munición dentro de un área de tiro activa
Uno de los elementos más llamativos de la documentación es la ubicación del área de almacenamiento dentro de una zona clasificada como campo de tiro activo (Small Arms Range Surface Danger Zone).
Los propios planos delimitan zonas de impacto directo de proyectiles, zonas de rebote y zonas secundarias de peligro. Esto implica que la infraestructura de almacenamiento de munición se integra en un entorno de uso armado real, no en un área pasiva o aislada. El diseño asume fuego real, entrenamiento continuo y riesgo operativo cotidiano como parte del funcionamiento normal de la instalación.

Ninguna de las fuentes consultadas interpreta esta ampliación como una decisión aislada. Morón forma parte de un sistema más amplio que incluye otras bases estratégicas, como Rota, y que responde a una planificación multinivel, donde confluyen intereses españoles, estadounidenses y de la OTAN.
Aumentar la capacidad de almacenamiento de munición en el sur de España reduce la dependencia de largas cadenas de suministro desde Estados Unidos y permite una respuesta más rápida y autónoma ante distintos escenarios. En términos militares, eso es una ventaja clara. En términos políticos, implica algo menos visible: que el territorio donde se ubica la base adquiere un peso estratégico mayor, aunque no haya cambiado nada en su estatus formal.
Este refuerzo cobra especial sentido en el contexto actual, marcado por un endurecimiento de la política exterior estadounidense y por un discurso de rearme que vuelve a situar la disuasión militar en el centro del tablero internacional.

Los planos muestran muros de 45 centímetros, puertas acorazadas y módulos alineados con precisión. Las fuentes explican lo que eso significa en la práctica: más capacidad, más permanencia y más centralidad estratégica.
No hace falta recurrir a hipótesis extremas ni a discursos inflamados para entender que las capacidades que se crean hoy condicionan los escenarios de mañana. Y que, en un contexto internacional cada vez más tensionado, esas capacidades importan tanto como las palabras con las que se justifican.
Arquitectura para escenarios de alta intensidad
Las secciones constructivas refuerzan esta lectura. El uso de muros macizos, sistemas de continuidad eléctrica, la ausencia total de huecos laterales y el tratamiento específico del terreno —con control de asentamientos y compactación reforzada— responden a normativa de seguridad para explosivos, no a estándares industriales convencionales.
En términos técnicos, el conjunto está diseñado para contener explosiones internas, minimizar la fragmentación y limitar los efectos en cadena entre módulos. Traducido a un lenguaje civil: se asume que el material almacenado puede detonar, y se construye para que eso no destruya todo lo demás.
Este tipo de infraestructura no se levanta de forma improvisada ni para cubrir necesidades temporales. Requiere planificación a largo plazo, inversión sostenida y una previsión clara de uso futuro.
En un momento en que Estados Unidos impulsa un refuerzo de sus capacidades militares en el marco de la OTAN —con especial énfasis en flancos estratégicos—, la ampliación de Morón encaja en una lógica de consolidación operativa. No es simple mantenimiento ni una modernización menor: es capacidad adicional diseñada para escenarios de alta intensidad.
Las preguntas que quedan fuera del plano
Los documentos técnicos explican qué se construye y cómo, pero no responden a cuestiones que afectan directamente a la población civil. ¿Se ha informado públicamente del aumento de capacidad de almacenamiento de munición? ¿Se han evaluado escenarios de accidente grave más allá del perímetro militar? ¿Qué papel juega esta ampliación en la estrategia militar actual? ¿Cómo se integra este riesgo en un territorio próximo a núcleos de población?
Hay un aspecto del que se habla poco y que, sin embargo, preocupa a muchas de las fuentes consultadas: el riesgo civil asociado al aumento de munición almacenada. No porque las bases no tengan medidas de seguridad —las tienen, y muy estrictas—, sino porque el riesgo nunca es cero, y crece a medida que crece la cantidad de material peligroso concentrado en un mismo lugar.
Los escenarios que se contemplan no son necesariamente ataques enemigos. Mucho más probables, aunque sigan siendo poco frecuentes, son los accidentes: un incendio, un fallo durante una operación de carga, un error humano. Cuando el volumen de munición se multiplica, también lo hace el impacto potencial de un incidente grave.
La cuestión incómoda es que ese impacto no se detiene mágicamente en el perímetro militar. Las ondas expansivas, los incendios secundarios o las evacuaciones de emergencia afectan a territorios y poblaciones que no participan en la toma de decisiones, pero sí en la asunción del riesgo.
La onda expansiva de una detonación no entiende de vallas ni de jurisdicciones administrativas. Tampoco la consideración de objetivo militar en el escenario de enfrentamiento bélico.
Los planos oficiales describen ahora mismo una ampliación significativa, técnicamente compleja y orientada a escenarios de alta intensidad. En tiempos de creciente tensión internacional, la pregunta no es si estas infraestructuras son «normales» desde el punto de vista militar, sino qué implican para un país que no está formalmente en guerra y por qué decisiones de este calibre siguen tomándose sin un debate público proporcional a su alcance.
Ampliaciones de este tipo no se discuten públicamente. Se tramitan como asuntos técnicos o de seguridad, lejos del debate democrático, tanto a nivel local como estatal. No hay consultas, no hay explicaciones detalladas, no hay espacios reales para preguntar «qué significa esto para nosotros».
Sin embargo, el efecto acumulado de estas decisiones es profundamente político. Refuerzan el papel de Andalucía como frontera militar avanzada, incrementan su exposición en escenarios de tensión internacional y lo hacen sin que la población tenga capacidad de influir o siquiera de conocer el alcance real de lo que se está construyendo.




